Letar du efter en välplanerad lokal med generös takhöjd, bra tillgänglighet och möjlighet till snabb inflyttning?
På Spikvägen 8 i Uddevalla erbjuder vi nu en flexibel yta om 216 m², perfekt för det mindre företaget som vill etablera sig i ett populärt industriområde med närhet till både E6 och riksväg 44.
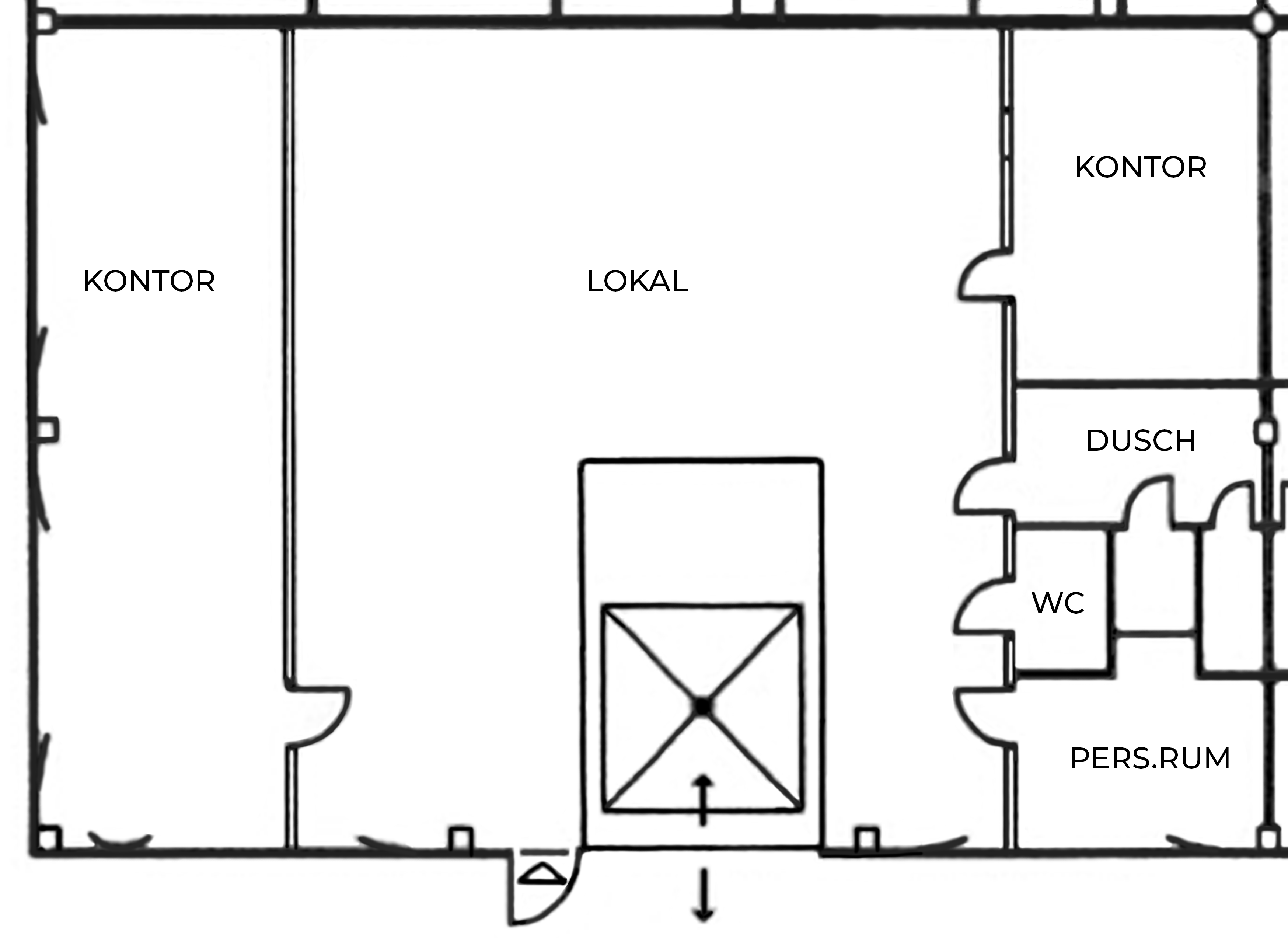
Lokalen har 5,5 meters takhöjd, en stor markportsinfart och en funktionell planlösning med både kontor och pentry. Här får du en välutrustad arbetsmiljö med bekvämligheter som omklädningsrum, dusch, WC, besöksparkering och egen p-plats. Tillträde kan ske omgående, och med ett förstahandskontrakt på lång sikt får ditt företag trygga och stabila villkor.
Passande verksamheter
Den här lokalen lämpar sig väl för flera typer av verksamheter, bland annat:
Industri & verkstad – exempelvis lättare produktion, serviceverkstad eller montage.
Lager & logistik – tack vare hög port, god takhöjd och bra åtkomlighet.
Fordonsrelaterade verksamheter – i och med områdets profil med bilserviceföretag i direkt närhet.
Hantverk & entreprenad – idealiskt som bas för installatörer, bygg- och serviceföretag.
E-handel och distribution – effektiv lager- och packyta med enkel in- och utlastning.
Med ett strategiskt läge och närhet till etablerade företag som RMS Bilservice, Köksmästaren och Optimera får du en attraktiv adress i ett levande område med goda kommunikationsmöjligheter.
Välkommen att hyra en lokal som ger plats åt tillväxt! Vill du veta mer eller boka en visning? Kontakta oss så berättar vi mer.
Parkering
Besöksparkering
Kök/Pentry
Omklädningsrum
WC
Dusch
EKONOMI
Långtidskontrakt
Kontrakttyp:
Förstahandskontrakt
Tillträde:
Omgående
Utgångshyra kr/m2/år:
825
Hyresdeposition:
3 månadshyror
Hyresinformation:
Kallhyra, el tillkommer enligt undermätare.
UTFÖRANDE
Spiken 7
1987
Våningsplan:
1
Lokal i ett plan med kontor o pentry.
Teknisk information
5,5 m
Direktverkande el
Hög port i markplan
Omgivning
RMS Bilservice, Tommies Bilservice. Köksmästaren, Fritidsfordon Optimera Ryds Bilglas
Infart från rv44 mot Herrestad och Unda.


